
Our SERVICES

RESIDENTIAL

DEVELOPMENT

COMMERCIAL

PLANNING
CASE STUDY / OLD BEACH TAS
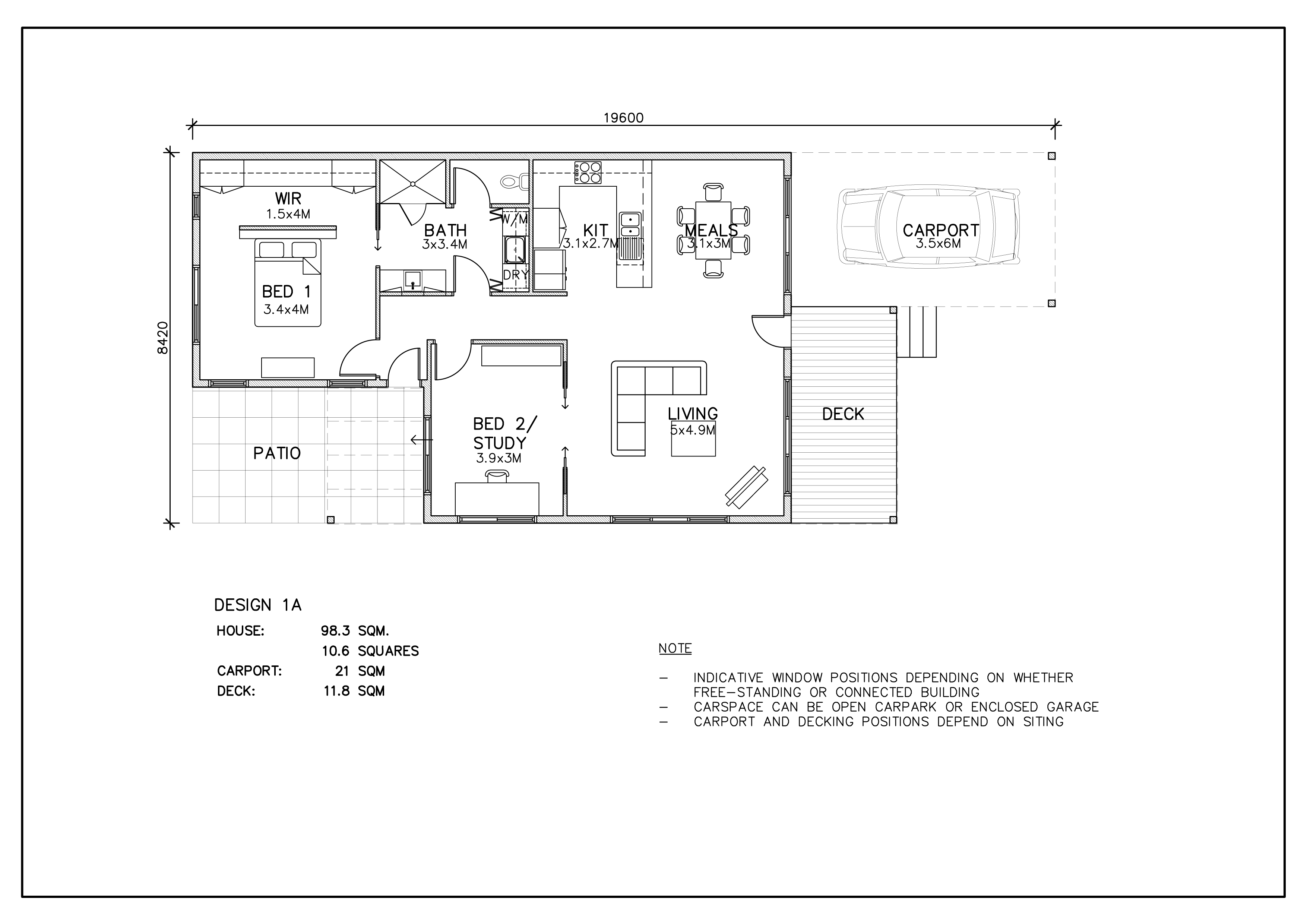
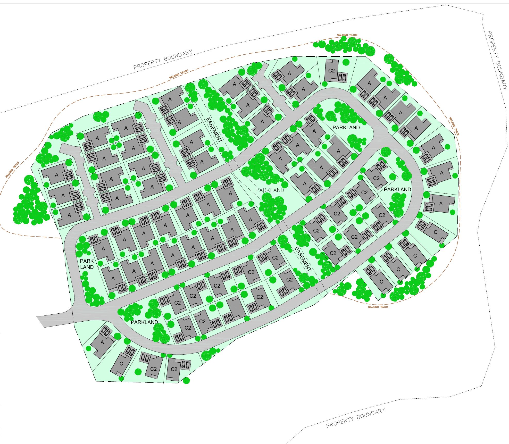
Prefabricated community homes
On the rolling hills of Hobart, we worked with the client to develop a masterplan, staged subdivision, infrastructure plan and array of unit designs for this magnificent retirement living community.
Our depth of construction experience allowed us to design a variety of home modules for purchasers to choose from, all of which could be pre-fabricated and craned onto site - reducing construction times & costs, and ensuring sustainable building practices
The brief: creation of a retirement community with independent living units focussed on limiting construction costs
DESIGN ELEMENTS
Heritage Elements
Given the heritage character of the surrounding area, the design response needed to respect heritage qualities and present cohesively in the streetscape. The external design focuses on contemporary presentation of the surrounding heritage character elements, with gable roofs, recessed upper-levels, formal porch and small eaves – all in a contemporary manner.
Split Level Slope
The design takes advantage of the sloping site, incorporating a split level that allows for high ceilings in the main living area. The entertaining focus flows through the house, with the open plan kitchen area seamlessly transitioning to a covered patio accessing the garage
Light & Space
Vaulted ceilings throughout the house create a feeling of verticality and openness, combined with extensive feature glazing make the spaces feel twice as large as they actually are.
Flexible Living
Configuration of the house itself allows for separation of living and sleeping zones, with upstairs bedrooms opening onto a light-filled rumpus room. Above the garage sits a studio providing a separate self-contained that could be used as an office or apartment.
Energy Efficiency
High-efficiency double-glazing and recycled composite materials coupled with passive design principles ensured the house achieved a 7 Star Energy Rating.
.jpeg)
Project Name
.jpeg)
Project Name
.jpeg)
Design Elements
Heritage Elements
Given the heritage character of the surrounding area, the design response needed to respect heritage qualities and present cohesively in the streetscape. The external design focuses on contemporary presentation of the surrounding heritage character elements, with gable roofs, recessed upper-levels, formal porch and small eaves – all in a contemporary manner.
Split Level Slope
The design takes advantage of the sloping site, incorporating a split level that allows for high ceilings in the main living area. The entertaining focus flows through the house, with the open plan kitchen area seamlessly transitioning to a covered patio accessing the garage
Light & Space
Vaulted ceilings throughout the house create a feeling of verticality and openness, combined with extensive feature glazing make the spaces feel twice as large as they actually are.
Flexible Living
Configuration of the house itself allows for separation of living and sleeping zones, with upstairs bedrooms opening onto a light-filled rumpus room. Above the garage sits a studio providing a separate self-contained that could be used as an office or apartment.
Energy Efficiency
High-efficiency double-glazing and recycled composite materials coupled with passive design principles ensured the house achieved a 7 Star Energy Rating.
Behind The Façade
Planning Permit & VCAT
Given the sensitive heritage character, negotiations with Council were protracted and involved, progressing through VCAT before a Planning Permit was issued.
Site Constraints
With a relatively small property size, the design needed to make efficient use of the long-narrow lot, which can create rooms with poor aspect. The design solution of an open courtyard space and separated garage creates a generous living area with pleasant views into the private entertaining area.
Parking
Limited parking typical goes hand-in-hand with Inner-suburban living. A focus for the design was to incorporate a spacious and secure double-garage with additional frontage parking space.
.jpeg)
PROJECT SHOWCASE

OUR HISTORY
Rogers Architects is a family-led practice founded by Rob Rogers
Rob seasoned architect with decades of experience delivering thoughtful, functional, and timeless design. What began as Rob’s solo pursuit of architectural excellence has evolved into a collaborative practice. He now works closely with his son, Michael Rogers, who brings a fresh perspective and a passion for design that reflects the way people live and work today.
Together, Rob and Michael combine experience with innovation. They value tradition and curiosity equally, shaping spaces that are practical, considered, and beautiful. Their partnership reflects a shared commitment to quality and a deep respect for the craft.
OUR EXPERTIESE
Whether you’re looking to build your dream home from the ground up, transform an existing space, or expand your living area.
Rogers Architects offers expert design services for a range of residential projects. From intricate designs for complex sites to seamless renovations, our goal is to provide functional, sustainable, and stylish spaces that reflect your unique vision.
-
New Homes: Custom-built homes designed to suit your lifestyle and aesthetic preferences.
-
Knock-Down Rebuilds: Maximize the potential of your property with a brand-new home, designed to meet your specific needs.
-
Renovations: Revamp existing spaces to improve functionality, flow, and style.
-
Extensions: Expand your home with well-planned extensions that integrate seamlessly with the current structure.

OUR APPROACH
Everything begins with listening. We take the time to deeply understand your vision, challenges, and goals.
This thoughtful, collaborative approach is the foundation of every project we take on. It guides our work from the first sketch through to final handover.
We believe great architecture lives at the intersection of form and function, creativity and context. Whether it’s a bespoke home, a commercial space, or a community development, we approach each project with clarity, care, and purpose. We deliver spaces that are smart, enduring, and designed to make a difference.
But we don’t just design. We take care of the entire process:
-
Collaborating with consultants to align every aspect of your project
-
Liaising with councils and managing planning permit applications
-
Tendering to our trusted network of experienced builders
-
Coordinating with building surveyors to secure your building permit
-
Overseeing construction to ensure quality, consistency, and design integrity.
.jpg)
CLIENTS WE WORK WITH
We collaborate with homeowners and families who are looking for high-quality, personalised residential design solutions. Whether it’s a young family building their first home or homeowners looking to renovate or expand, we tailor our services to meet a diverse range of needs.
Our clients trust us to provide creative, practical, and cost-effective residential solutions that turn their dream homes into reality.

DESIGN ELEMENTS
Masterplanning
Our staged planning and lot design allowed for the gradual expansion of the facilities and homes without excessive upfront infrastructure costs.
Aspect
Given the undulating terrain, lots were configured to each have an aspect to the rolling hills or seaside, with minimal site excavation or retaining wall works – allowing each unit to have their own view and character.
Prefabrication
Designs were specifically configured to allow for pre-fabrication and transport to site – saving time and reducing construction costs.
Sustainability
The life cycle and carbon footprint of buildings extends beyond the building itself.
Careful consideration of design elements, materials and construction methodology allowed for a sustainable design.
BEHIND THE FAÇADE
Prefabrication
Prefabrication of buildings requires careful design consideration. In collaborating with the client, engineers and builders, we achieved a range of designs to suit various lots that could all be transported to site and erected within a single day.
Approvals
Larger projects with protracted timeframes present a challenge from an approvals perspective, with Planning and Building codes changing over the course of the project.
Consistent and open dialogue with Responsible Authorities was a key aspect to consistency in this project delivery.
Multidisciplinary Collaboration
This project involved an array of stakeholders, each with varying aims and goals. Our role as architects was to coordinate and manage the entire process to ensure the clients aims were achieved at every stage of the process.
Working with Councils, Building Surveyors, Engineers, Land Surveyors, Builders and Buyers.
.jpg)
RESIDENTIAL
New homes, knock-down rebuilds, renovations, and extensions for homeowners and families seeking custom designs and expert solutions.

DEVELOPMENT
Apartments, townhouses, and mixed-use projects for developers, builders, and investors, focused on maximising profits, securing permits, building, selling, or long-term rental
.jpg)
COMMERCIAL
Mixed-use, industrial, commercial, retail, and government projects for developers, businesses, and councils, focused on operational efficiency and strategic development.

PLANNING
Essential for most projects, helping all clients secure council approvals with minimal fuss.
.jpg)
OUR APPROACH
Rogers Architects is a family-led practice founded by Rob Rogers
Rob seasoned architect with decades of experience delivering thoughtful, functional, and timeless design. What began as Rob’s solo pursuit of architectural excellence has evolved into a collaborative practice. He now works closely with his son, Michael Rogers, who brings a fresh perspective and a passion for design that reflects the way people live and work today.
Together, Rob and Michael combine experience with innovation. They value tradition and curiosity equally, shaping spaces that are practical, considered, and beautiful. Their partnership reflects a shared commitment to quality and a deep respect for the craft.
NO. 2
THE OCEANFRONT COTTAGE
Type
SINGLE-FAMILY HOME
Location
COASTAL TOWN
Description
A CHARMING TWO-BEDROOM COTTAGE WITH A PRIVATE BEACH ACCESS, PERFECT FOR WEEKEND GETAWAYS OR RETIREMENT LIVING.

NO. 3
THE LUXURY MANSION
Type
SINGLE-FAMILY HOME
Location
EXCLUSIVE NEIGHBORHOOD
Description
A GRAND ESTATE WITH MULTIPLE BEDROOMS, A SWIMMING POOL, TENNIS COURT, AND EXPANSIVE GROUNDS. HIGH-END FINISHES AND CUSTOM FEATURES THROUGHOUT.

WE'RE YOUR LOCAL REAL ESTATE EXPERTS

THIS IS THE PLACE TO INTRODUCE VISITORS TO THE BUSINESS OR BRAND. BRIEFLY EXPLAIN WHO'S BEHIND IT, WHAT IT DOES AND WHAT MAKES IT UNIQUE. SHARE THE CORE VALUE AND WHAT THIS SITE HAS TO OFFER.

Need advice on your next project?
© 2025 Created by Eye Candy Design



















